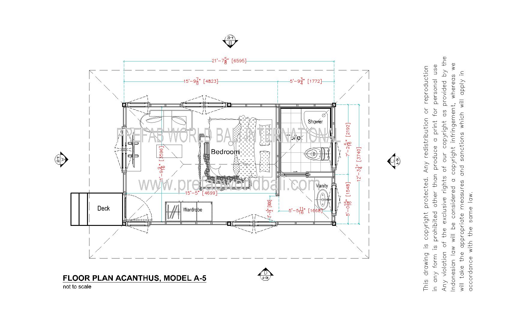
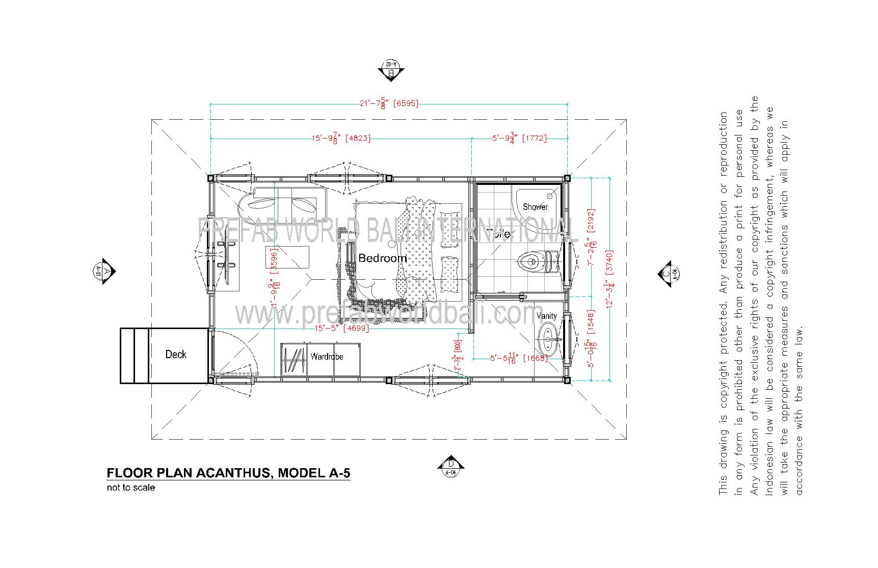
ACANTHUS (21.5 m2, 230 sqft)
                      Code A-5Acanthus


   

Acanthus plan

Floor plan

Acanthus front elevation

Front elevation

Acanthus left elevation

Left side elevation 

   

Acanthus right elevation

Right side elevation

Acanthus rear elevation

Rear elevation

Acanthus 1

Render

GENERAL DATA 
Total net. interior sided area: 21.5 m2 (231 sqft)
 No deck for this unit

Building footprint area: 3.84 x 8.30 meter (21' - 11 5/8" x 27' - 2 5/8")
Roof edge footprint area: 5.82 x 8.77 meter (19' - 1 1/4" x 28' - 5 5/8")

 Enquire for the price list download code