In hand projects
IN HAND PROJECTS
A. TAHITI (BORA BORA), 1-bedroom dwelling for Mrs. Tea Suchard, (drawings under construction)
B. ISLAND OF DOMINICA, CARIBBEAN, small resort, comprising 3 guest units, a restaurant and a private villa for Mr. Julien Duclos. (ECO lodge Taha'a).
All units were designed to hurricane rating and Richter 5 earthquake.
The project includes design, prefabrication, foundations, the detailed Technical Specifications and a detailed cost estimate.
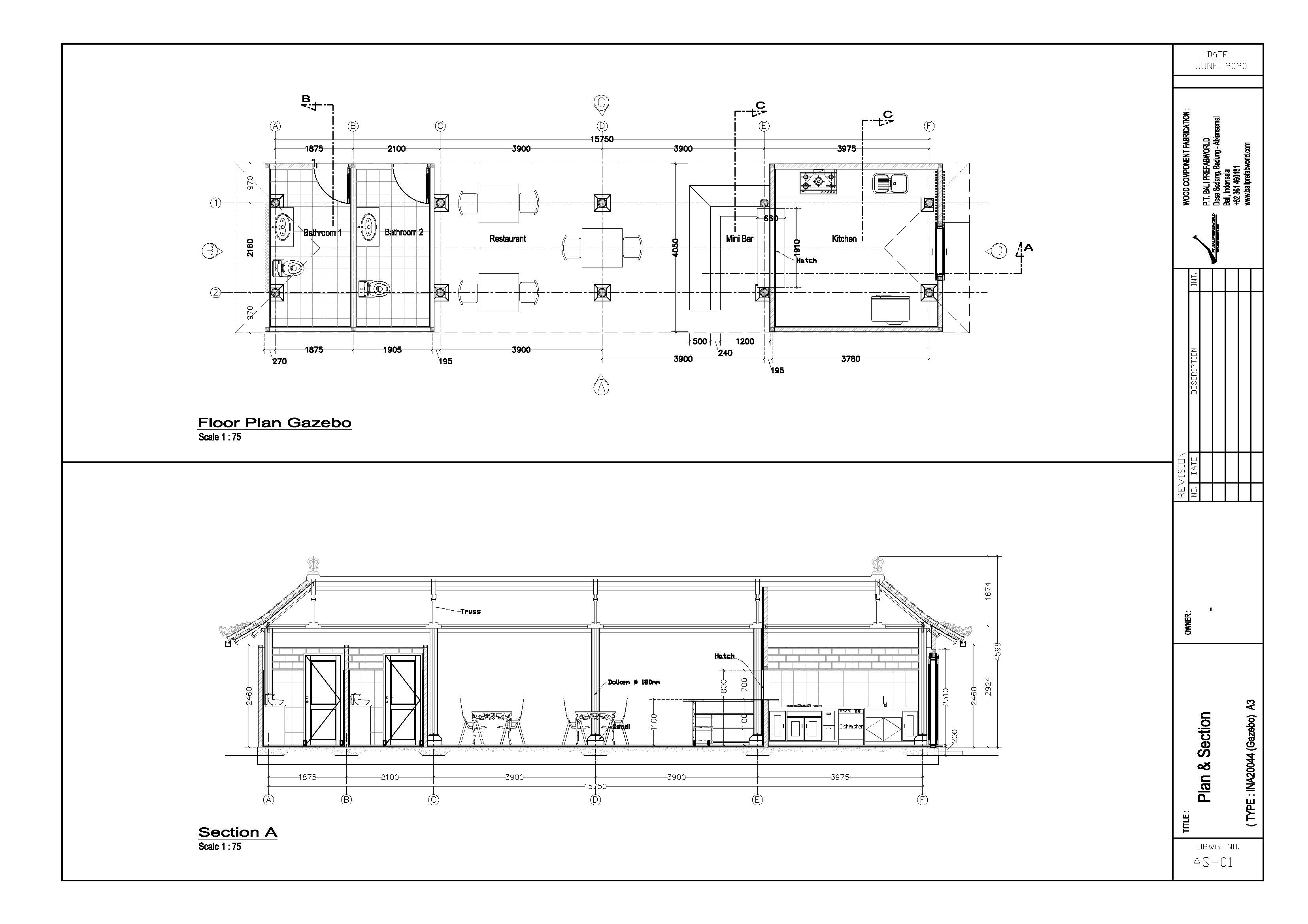
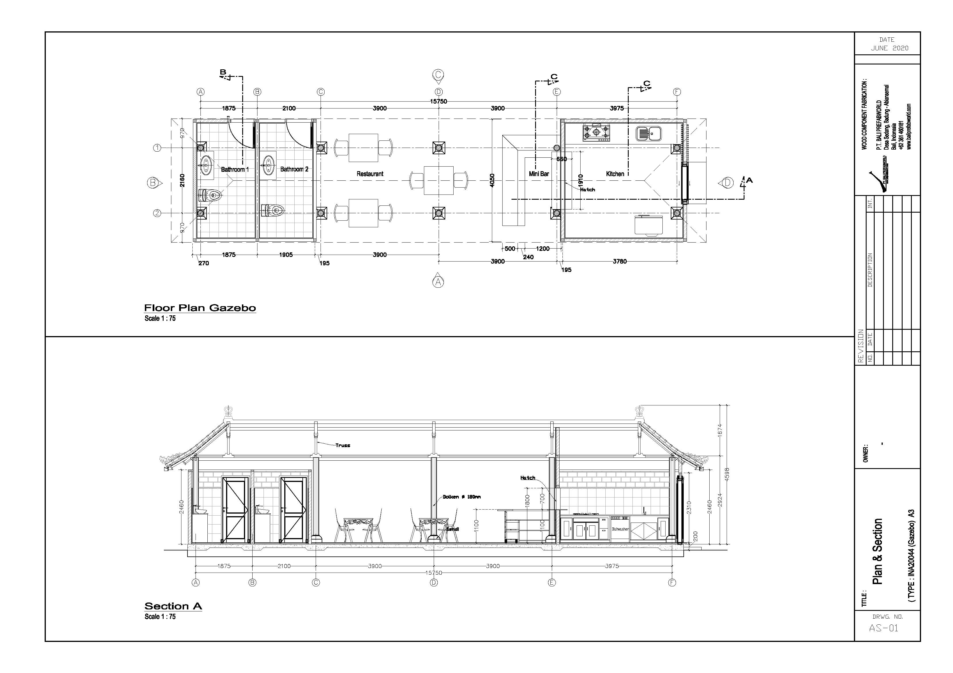
C. Large swimming pool side gazebo for Mr. Mark Longhurst, Bali
D. INDONESIA, ISLAND OF SUMBAWA for Appeal Catering Australia, Mrs. Belinda Jones.
The project includes prefabrication, foundations, electricity, plumbing, preparation of all master plans, the Bill of Quantities, and a detailed cost estimate. The project comprises 5 guest house units, a large gazebo-style restaurant, a swimming pool, a 2-story villa for the owner, a 2-story accommodation house for personnel, and a security office. The stormwater system and the sewer were designed by us, as well as the main electrical system and the electrical systems in all buildings. Additionally, Prefabworld Bali International conducted a comprehensive soil investigation to verify that the subsoil was strong and stable enough to support the buildings. It appeared that a settlement of almost 3 cm could be expected as such Prefabworld Bali International adapted a special foundation design to allow for the structures to absorb these settlements safely.
Units were designed to sustain a Richter 6 earthquake.
E.. PANAMA, BOCAS DEL TORO, 2-pod large overwater villa. Mr. Jan Aarts, The Netherlands.
The project comprises the design and drafting works for a 2-pod villa of 150 m2 to be built over water. Our company designed the villa, including the electricity, plumbing and the overwater piled foundation for which structural calculations were produced with our finite element computer program, taking into account a category 3 hurricane wind force to the villa and a 4.5 Richter earthquake.
F. ISLAND OF SUMBA, INDONESIA, small resort. Mrs. Natahlie Kohler, Switzerland
The project includes prefabrication, foundations, electricity, plumbing, preparation of the master plan, the Bill of Quantities, and a detailed cost estimate. The project comprises a guest house, a large 2-story gazebo and a typical Bali-style Lumbung, a restaurant, a swimming pool and a security office. The stormwater system and the sewer were designed by us, as well as the main electrical system and the electrical systems in all buildings.
Units were designed to sustain a Richter 6 earthquake.
The Lumbung unit

































