CHAMOMILE 1(121 m2, 1,267 sqft)    
                     Code A-35 Chamomile

   

Chamomile 1

Chamomile-1 (large unit)
CODE A-35A
Floor and elevation

The unit was designed by the client and prefabricated by our company and was assembled by the Client on the island of Reunion 

The client allowed us to showcase the unit on our website 


 

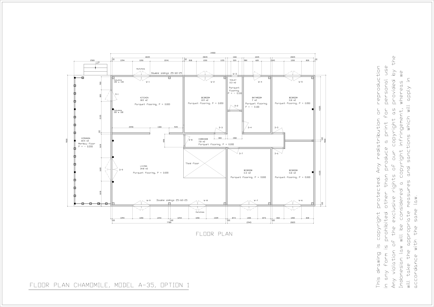
Chamomile floor plan rev 0 Model 1Floor plan 

Chamomile left side elevation rev 0 Model 1

Left side elevation

 

Chamomile right side elevation rev 0 Model 1

Right side elevation

Chamomile rear elevation rev 0 Model 1

Rear elevation

 

Exterior sidings

During construction at our yard
(type 1)

Reunion 1

Finalized at our yard
(type1)

Reunion 2

 Built at client's end  
(type 1)

Reunion 3

 Left side elevation
(type 1)

Reunion living

Living
(type 1 & 2)

Reunion living 2Living (Type 1 & 2)
Reunion kitchenKitchen (Type 1 & 2)

Hatches

Hatches (left side closed, right side open)
(for both type 1 & 2)

 

GENERAL DATA

Large unit: (option 1)
Total net. interior sided area: 121.2 m2 (1,276 sqft)
Building footprint area: 10.25 x 8.00 meter (45' x 29' - 5")
Roof edge footprint area: 17.30 x 8.85 meter (75' - 3 /32" x 29' - 1/3")  
Veranda: 9 x 2.5 meters.

Small unit: (option2)
Total net. interior sided area: 84.9 m2 (895 sqft)
Building footprint area: 4.90 x 5.38 meter (16' x 17' - 6")
Roof edge footprint area: 11.40 x 8.80 meter (37' - 2" x 29' - 1")  
Veranda: 4.40 x 0.95 meters

 Enquire for the price list download code

 To return to the Excel price list click on X at the top right side of the drawing. To link to another model page in this website click < here >